马尔贝拉设计学院新校区
非常荣幸的通知大家,马尔贝拉设计学院获得了资金支持去建造新校区。新校区建在蒙达的一个小山村-距离马尔贝拉16公里的山上。我们已经迫不及待的想要搬进去了。新校区将会配备我们所能想到的最好的设备。建筑是安大路西卡的风格,与周围的自然风景和西班牙建筑形成互补。
所有证件执照已申请齐全,建筑合同已签,于2007年7月11日动工。
新校区将在2008年8月1日彻底竣工,以便准备在2008年10月1日迎接我校师生。在这之前,我们将继续住在马尔贝拉。

马尔贝拉新校区
我相信大多数学生会选择居住在蒙达的小山村里,那里距离学院步行仅2分钟。那里的消费水平远远低于马尔贝拉的市中心。那里有美丽的广场和舒适的餐馆,是典型的西班牙风格。
附近地方有很多娱乐活动帮助你打发闲暇的时光:比如骑马,徒步旅行,脚踏车,足球和其他的户外活动。
蒙达坐落在一个巨大的天然公园之间。
针对愿意继续居住在马尔贝拉的学生,我校提供班车,每天早起和放学时各有3趟往返于新老校区之间。同时学生们也可以乘坐公交车。
蒙达以及附近小山村有很多建造好的房子和公寓等待出租。
为了保证教学质量,我们只招200名学生。
马尔贝拉有很多1对1的授课辅导,这对保证教学质量是非常重要的。学院招生很快爆满,所以请确定好下一学年申请入学的时间。
新校区提供的服务:
建在10000平米私人自然广场上的1500平米的建筑
Gaudi餐馆将会提供国际性健康的佳肴。这里的菜单上的菜肴可以满足来自世界各地的学生的口味。餐馆将会对公众,特别的聚会和展览开放。学生出示ID卡可以享受很大的折扣。
学校还会提供如下服务:
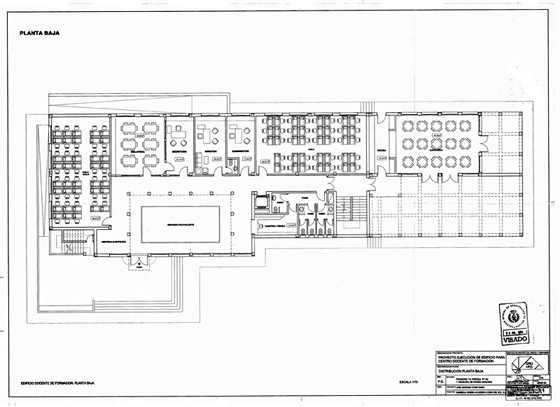
学生用品商店,学生在这里可以低廉的价格购买到所有课程必须的材料。这里还将有专门针对残疾人的坡道,电梯和其他设施。其他设施包括:(请参考如下的建筑图纸)
- 行政办公室
- 图书馆
- 演讲厅
- 礼堂
- 宽敞的教室
- 计算机房
- 完备的工作室
- 为员工和学生提供的宽敞的停车场
我们期待你的加入,在2007-2008年在马尔贝拉校区学习,下一届的学生会直接进入新校区学习。

马尔贝拉新校区建筑图纸

新校区所在地距离美丽的蒙达村庄仅250米,从马尔贝拉开车过来也仅需15分钟。

从高空俯瞰图上你会发现新校区距离蒙达的村庄很近。

俯瞰图上可以清晰的看到这个地域的形状

新校区的地面设计。

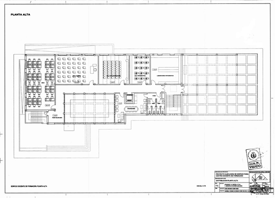
第一层

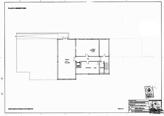
地下室有我们宽敞的工作室

建筑的正面和侧面图